2,000 sqft
Fully Air Conditioned
Forced Air
$3,000 Monthly
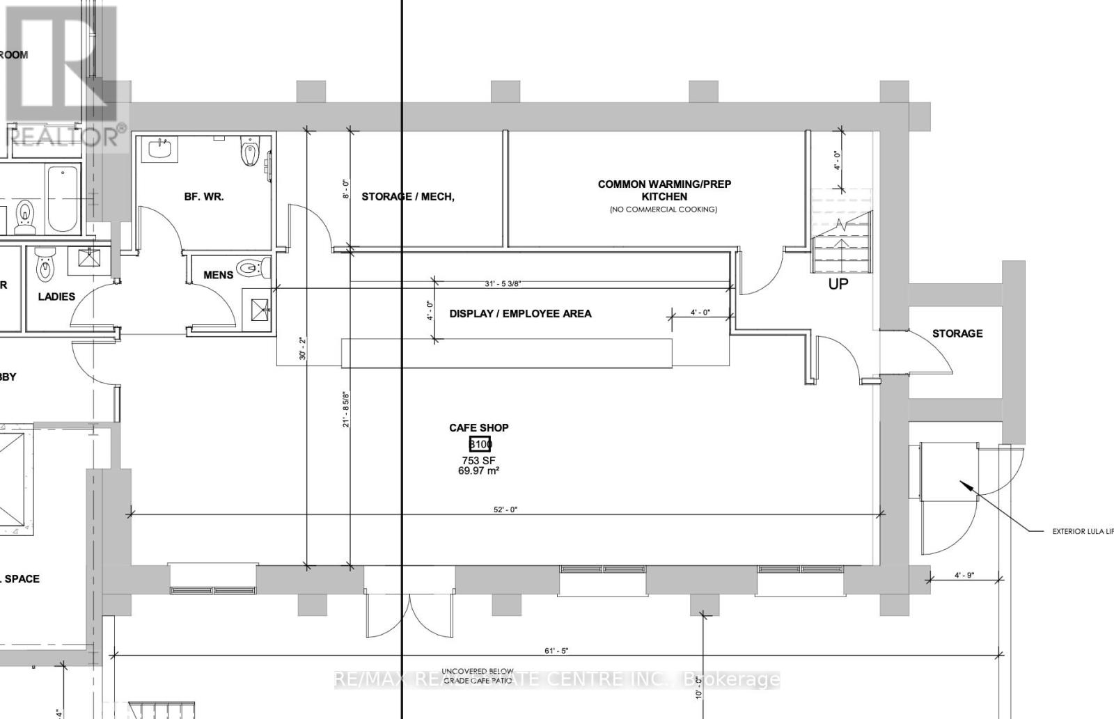
This is a great opportunity to make a historic space into a new great commercial offering. The basement particularly has a perfect setting for a nice cafe with 7 residences attached to it. Also an opportunity to make this work and live space, with the Church main floor area able to be converted into an epic residence with an access to below work area. This building has all the zoning approvals within C5 OR special permissions for Cafe, Assembly hall, Club House, or Theatre. The building is being repositioned as a mixed use development. Work with the builder to customize the space. Just steps from Broadway, great location with great visibility. Tons of public and street parking in the area. Two floors available together or rent out the top or bottom separately ...over 4,000 sqft together or over 2,000 per level. (id:63476)
Property Details
|
MLS® Number |
W12993894 |
|
Property Type |
Retail |
|
Community Name |
Orangeville |
|
Features |
Elevator |
|
Parking Space Total |
1 |
Building
|
Cooling Type |
Fully Air Conditioned |
|
Heating Fuel |
Natural Gas |
|
Heating Type |
Forced Air |
|
Size Interior |
2,000 Sqft |
|
Utility Water |
Municipal Water |
Land
|
Acreage |
No |
|
Size Depth |
147 Ft |
|
Size Frontage |
50 Ft |
|
Size Irregular |
50 X 147 Ft |
|
Size Total Text |
50 X 147 Ft |
|
Zoning Description |
C5 + Cafe + Club House + Event Space + Theatre |