2 Bedroom
3 Bathroom
1,195 sqft
Fireplace
See Remarks
Central Heating
Landscaped
$679,500Maintenance, Common Area Maintenance, Reserve Fund Contributions
$372.47 Monthly
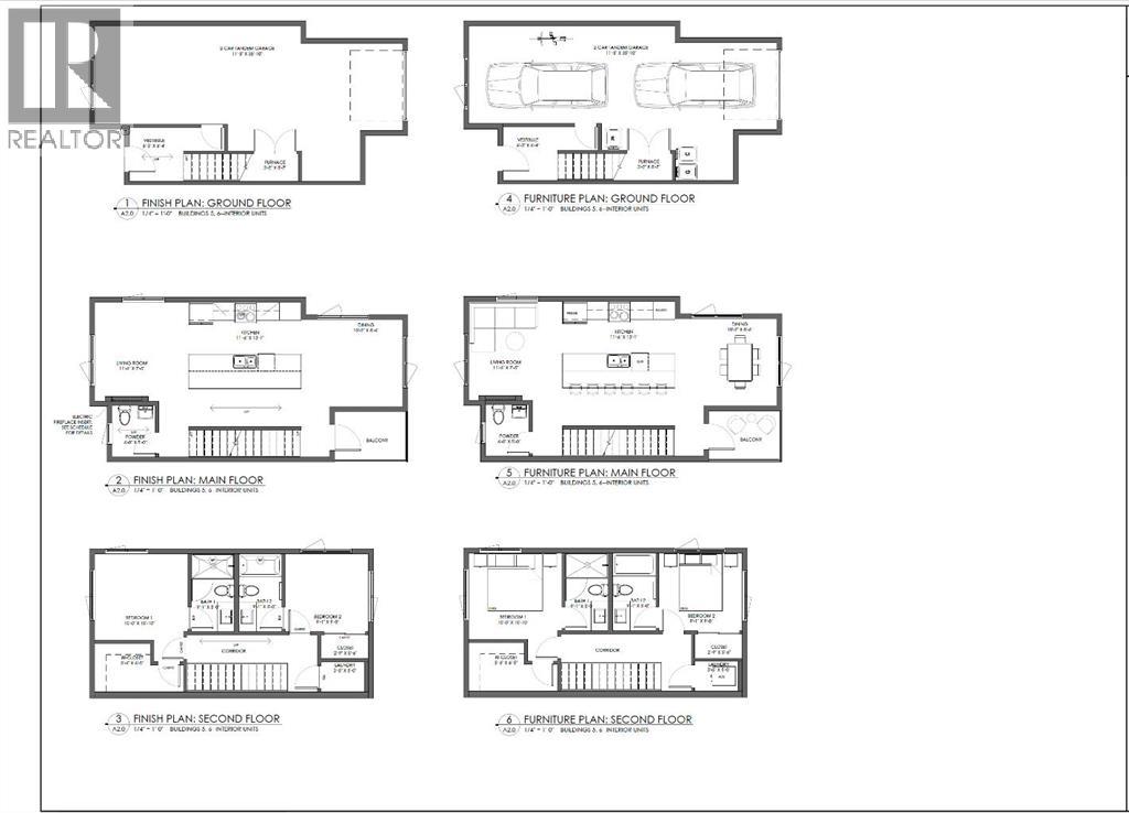
Luxurious Townhome in Currie Barracks - A Legacy of DistinctionONE OF 30 LUXURY TOWN HOMES IN CURRIE BARRACKS. Welcome to an exquisite townhome nestled within the prestigious Nichola community in Currie Barracks. This master-planned intercity neighborhood is just 7 minutes from downtown, providing effortless access to an array of exceptional dining, shopping, and cultural attractions.Spanning 1195.26 sq. ft., this thoughtfully designed residence features two bedrooms, 2.5 baths, and a nice open concept floor plan, ensuring ample space for both relaxation and productivity. The home boasts 9-foot ceilings on every level, creating a sense of grandeur and openness that invites natural light to flow seamlessly throughout.The heart of the home is a gourmet kitchen, complete with an OVERSIZED GRAND ISLAND (13’0) complete with STYLISH PREMIUM QUARTZ BACKSPLASH & COUNTER TOPS. Ideal for culinary enthusiasts and entertaining guests. Luxurious finishes abound, including PREMIUM MILLWORK, knockdown ceilings, and a sophisticated STUCCO EXTERIOR accented by elegant brick veneer. The bathrooms elevate the home's luxury with MIRRORS THAT STRETCH TO THE CEILING, enhancing the sense of space and sophistication. Thoughtfully equipped with rough-ins for AIR CONDITIONING & SOLAR PANEL, and an ATTACHED TWO CAR GARAGE, the home also includes upgrade options for convenient EV CHARGING rough-ins for modern convenience. Step outside to enjoy serene outdoor living on the DURADEK-FINSHED BALCONIES or gather around the IMPRESSIVE 42” LANDSCAPE FIREPLACE for cozy evenings under the stars. The residence is outfitted with luxurious finishes such as 8-FOOT DOORS, 4-INCH. BASEBOARD, 3” CASINGS, ensuring a refined aesthetic throughout. Buyers can also choose from TWO ELEGANT PALLETTES; THE CALIGA OR LAMBENT allowing for personalization to match your style.Living in Currie Barracks means embracing a community that honors the legacy of Canadian heros such as Captain Nicola Kathleen Sar ah Goddard, after whom the NICHOLA TOWNHOMES project is named. This historic neighborhood beautifully blends tradition with modernity, offering immediate access to a nearby dog park, top-tier charter and private schools, and Mount Royal University—making it ideal for families and professionals alike.Indulge in a rich tapestry of cultural experiences, from art galleries to fine dining, all just moments away. This luxurious townhome is more than just a residence; it embodies a lifestyle of elegance, community, and honor.Don’t miss the opportunity to make this remarkable home yours. Schedule a private viewing today and immerse yourself in the luxury and legacy that awaits at Nichola (id:63476)
Property Details
|
MLS® Number |
A2291599 |
|
Property Type |
Single Family |
|
Community Name |
Currie Barracks |
|
Amenities Near By |
Park, Playground, Schools, Shopping |
|
Features |
Closet Organizers, No Animal Home, No Smoking Home, Parking |
|
Parking Space Total |
2 |
Building
|
Bathroom Total |
3 |
|
Bedrooms Above Ground |
2 |
|
Bedrooms Total |
2 |
|
Appliances |
Refrigerator, Stove, Oven, Microwave, Washer & Dryer |
|
Basement Type |
None |
|
Constructed Date |
2027 |
|
Construction Style Attachment |
Attached |
|
Cooling Type |
See Remarks |
|
Exterior Finish |
Brick, Stucco |
|
Fireplace Present |
Yes |
|
Fireplace Total |
1 |
|
Flooring Type |
Carpeted, Tile, Vinyl Plank |
|
Foundation Type |
See Remarks |
|
Half Bath Total |
1 |
|
Heating Fuel |
Natural Gas |
|
Heating Type |
Central Heating |
|
Stories Total |
3 |
|
Size Interior |
1,195 Sqft |
|
Total Finished Area |
1195 Sqft |
|
Type |
Row / Townhouse |
Parking
Land
|
Acreage |
No |
|
Fence Type |
Not Fenced |
|
Land Amenities |
Park, Playground, Schools, Shopping |
|
Landscape Features |
Landscaped |
|
Size Total Text |
Unknown |
|
Zoning Description |
Dc |
Rooms
| Level | Type | Length | Width | Dimensions |
|---|
|
Second Level |
Dining Room | | |
10.33 Ft x 11.83 Ft |
|
Second Level |
Kitchen | | |
12.67 Ft x 16.58 Ft |
|
Second Level |
Living Room | | |
9.67 Ft x 7.42 Ft |
|
Second Level |
2pc Bathroom | | |
6.00 Ft x 5.08 Ft |
|
Third Level |
Bedroom | | |
9.25 Ft x 9.67 Ft |
|
Third Level |
Laundry Room | | |
3.42 Ft x 5.00 Ft |
|
Third Level |
3pc Bathroom | | |
9.25 Ft x 5.00 Ft |
|
Third Level |
3pc Bathroom | | |
9.25 Ft x 5.00 Ft |
|
Third Level |
Primary Bedroom | | |
10.17 Ft x 10.92 Ft |
|
Lower Level |
Foyer | | |
6.25 Ft x 6.33 Ft |