7 Bedroom
5 Bathroom
3,546 sqft
Fireplace
Central Air Conditioning
Forced Air
Landscaped
$3,275,000
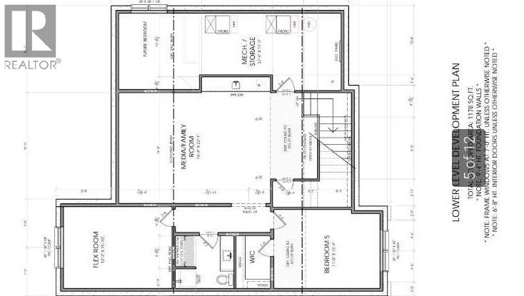
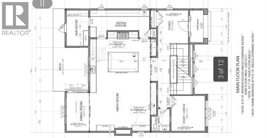
A New Gorgouse build with Monogram homes is now available! Currently under construction and to be fully finished in late June. Sitting on a full 50x120 lot & located on a quiet, tree-lined street in prestigious Upper Mount Royal, this exceptional new build offers over 3,500 sq.ft. of meticulously designed living space above grade, paired with a rare quad garage and an outstanding floor plan tailored for modern luxury living.Thoughtfully designed with both elegance and functionality in mind, the main level features soaring 10-foot ceilings and an expansive open-concept layout anchored by a stunning great room with a gas fireplace and oversized windows that flood the space with natural light. A chef-inspired kitchen sits at the heart of the home, complete with an oversized Taj Mahal Quartz island, premium appliance layout with pot filler, and a fully appointed butler’s pantry—perfect for entertaining at scale. The adjacent dining area opens seamlessly to the rear deck, creating an effortless indoor-outdoor flow. A private front office, sophisticated foyer, mudroom with built-ins, and a stylish wet bar complete the main floor.Upstairs, the home continues to impress with a well-appointed second level offering four spacious bedrooms, including a luxurious primary retreat featuring a spa-inspired ensuite with a freestanding tub, curbless shower, and a generous walk-in wardrobe. Three additional bedrooms are thoughtfully laid out—one with its own ensuite, while the others share a beautifully designed main bath. A dedicated upper laundry room adds everyday convenience, while open-to-below design elements enhance the sense of space and architectural sophistication throughout.The fully developed lower level provides an additional 1,500+ sq.ft. of living space, ideal for entertaining and relaxation. Here you’ll find a large media/family room, wet bar, a Flex room that could be a great space for an office or gym or a bedroom. 2 additional spacious bedrooms, and ample storag e—perfectly suited for guests or growing families.Completing this remarkable property is a rare rear quad garage, offering exceptional space for vehicles, storage, or hobby use—an increasingly hard-to-find feature in this sought-after inner-city location.With its timeless architecture, refined layout, and premium setting in one of Calgary’s most desirable communities, this home represents a rare opportunity to own a truly distinguished property in Upper Mount Royal.Additional Detailed plans and Selections are available to view in the Attachments (id:63476)
Property Details
|
MLS® Number |
A2301100 |
|
Property Type |
Single Family |
|
Community Name |
Upper Mount Royal |
|
Amenities Near By |
Park, Playground, Recreation Nearby, Schools, Shopping |
|
Features |
Back Lane, No Animal Home, No Smoking Home, Level |
|
Parking Space Total |
4 |
|
Plan |
2410471 |
|
Structure |
Deck, See Remarks |
Building
|
Bathroom Total |
5 |
|
Bedrooms Above Ground |
4 |
|
Bedrooms Below Ground |
3 |
|
Bedrooms Total |
7 |
|
Appliances |
Washer, Refrigerator, Range - Gas, Dishwasher, Dryer, Oven - Built-in, Hood Fan |
|
Basement Development |
Finished |
|
Basement Type |
Full (finished) |
|
Constructed Date |
2026 |
|
Construction Material |
Wood Frame |
|
Construction Style Attachment |
Detached |
|
Cooling Type |
Central Air Conditioning |
|
Fireplace Present |
Yes |
|
Fireplace Total |
1 |
|
Flooring Type |
Carpeted, Hardwood, Tile |
|
Foundation Type |
Poured Concrete |
|
Half Bath Total |
1 |
|
Heating Type |
Forced Air |
|
Stories Total |
2 |
|
Size Interior |
3,546 Sqft |
|
Total Finished Area |
3546 Sqft |
|
Type |
House |
Parking
Land
|
Acreage |
No |
|
Fence Type |
Fence |
|
Land Amenities |
Park, Playground, Recreation Nearby, Schools, Shopping |
|
Landscape Features |
Landscaped |
|
Size Depth |
36.57 M |
|
Size Frontage |
15.24 M |
|
Size Irregular |
558.00 |
|
Size Total |
558 M2|4,051 - 7,250 Sqft |
|
Size Total Text |
558 M2|4,051 - 7,250 Sqft |
|
Zoning Description |
R-cg |
Rooms
| Level | Type | Length | Width | Dimensions |
|---|
|
Second Level |
Other | | |
14.83 Ft x 10.25 Ft |
|
Second Level |
Primary Bedroom | | |
12.92 Ft x 22.42 Ft |
|
Second Level |
Laundry Room | | |
7.83 Ft x 8.67 Ft |
|
Second Level |
5pc Bathroom | | |
14.92 Ft x 11.00 Ft |
|
Second Level |
3pc Bathroom | | |
7.58 Ft x 7.50 Ft |
|
Second Level |
Other | | |
7.58 Ft x 4.67 Ft |
|
Second Level |
Bedroom | | |
12.17 Ft x 13.67 Ft |
|
Second Level |
Bedroom | | |
11.00 Ft x 12.17 Ft |
|
Second Level |
Bedroom | | |
11.92 Ft x 12.42 Ft |
|
Second Level |
5pc Bathroom | | |
7.83 Ft x 10.75 Ft |
|
Basement |
Furnace | | |
11.00 Ft x 170.50 Ft |
|
Basement |
Media | | |
18.50 Ft x 29.25 Ft |
|
Basement |
Bedroom | | |
11.50 Ft x 15.58 Ft |
|
Basement |
Bedroom | | |
10.92 Ft x 11.42 Ft |
|
Basement |
Bedroom | | |
11.33 Ft x 13.42 Ft |
|
Basement |
4pc Bathroom | | |
7.50 Ft x 8.83 Ft |
|
Main Level |
Study | | |
12.00 Ft x 11.42 Ft |
|
Main Level |
Other | | |
12.08 Ft x 7.58 Ft |
|
Main Level |
2pc Bathroom | | |
7.58 Ft x 6.08 Ft |
|
Main Level |
Foyer | | |
11.08 Ft x 13.00 Ft |
|
Main Level |
Other | | |
9.83 Ft x 20.00 Ft |
|
Main Level |
Kitchen | | |
16.92 Ft x 20.33 Ft |
|
Main Level |
Great Room | | |
16.75 Ft x 20.17 Ft |
|
Main Level |
Dining Room | | |
13.00 Ft x 8.08 Ft |