2 Bedroom
1 Bathroom
672 sqft
Bungalow
Wall Unit, Heat Pump
Acreage
$359,900
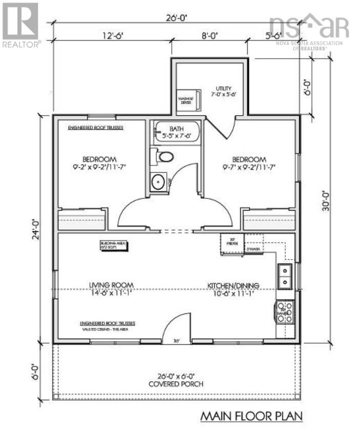
Have you dreamed of affordable living in your own house? We have the answer! Loon Point, in the Villages of Long Lake, an Lake Side Community in East Uniacke! Its just a short commute to the cities and airport. This Bare Land Condo has it all. You own your lot and everything on it, while the Condo Corp manages and maintains the roads, parks, trails and lake access points. They are even responsible to inspect your septic tank and clean it out if required. Yes every property owner has deeded access to the 3 private lake access points with their wharves, canoe, kayak, one even has a paddle board racks and boat launch. Undeveloped Lots start at approximately $67,500 and Homes start in the $300,000 price range. We offer many home designs suited to this development. We can also help design and build your custom home. This Cricket is a cozy Rancher. It is a 648 sq ft 2 bedroom home on a 1.4 acre lot. The House includes 2 comfortably sized bedrooms, a 4 piece bath, a utility/laundry room and a comfortable great room. Comfortable Cozy and very affordable. Call to book your appointment now (id:63476)
Property Details
|
MLS® Number |
202602753 |
|
Property Type |
Single Family |
|
Community Name |
East Uniacke |
|
Features |
Treed, Level, Walk-in Closet |
Building
|
Bathroom Total |
1 |
|
Bedrooms Above Ground |
2 |
|
Bedrooms Total |
2 |
|
Architectural Style |
Bungalow |
|
Basement Type |
None |
|
Construction Style Attachment |
Detached |
|
Cooling Type |
Wall Unit, Heat Pump |
|
Exterior Finish |
Vinyl |
|
Flooring Type |
Vinyl Plank |
|
Foundation Type |
Concrete Slab |
|
Stories Total |
1 |
|
Size Interior |
672 Sqft |
|
Total Finished Area |
672 Sqft |
|
Type |
House |
|
Utility Water |
Drilled Well |
Parking
Land
|
Acreage |
Yes |
|
Sewer |
Septic System |
|
Size Irregular |
1.4087 |
|
Size Total |
1.4087 Ac |
|
Size Total Text |
1.4087 Ac |
Rooms
| Level | Type | Length | Width | Dimensions |
|---|
|
Main Level |
Foyer | | |
included |
|
Main Level |
Great Room | | |
25 x 11.1 |
|
Main Level |
Living Room | | |
included |
|
Main Level |
Dining Room | | |
included |
|
Main Level |
Kitchen | | |
included |
|
Main Level |
Bedroom | | |
9.2 x 9.7 + jog |
|
Main Level |
Bedroom | | |
9.2 x 9.2 + Jog |
|
Main Level |
Bath (# Pieces 1-6) | | |
5.5 x 7.6 |
|
Main Level |
Laundry Room | | |
7 x 5.6 |
|
Main Level |
Utility Room | | |
included |