2 Bedroom
2 Bathroom
1,100 - 1,500 sqft
Bungalow
Fireplace
Central Air Conditioning
Forced Air
$535,000
OPEN HOUSE this Saturday April 25 at 1:30-2:30. Looking for small town charm, hospitality and a quality new build? This is a lifestyle worth waiting for! This bright and spacious end unit town home is brimming with amenities you expect and desire, from the 9 ft ceilings, to the open concept living area with gas fireplace, tray ceiling and huge patio doors to a private deck. Impressive kitchen, quartz counters with breakfast peninsula just perfect for entertaining. The primary is a beautiful retreat with the perfect size for your king suite, a walk-in closet, and an elevated ensuite with tile shower & glass doors. The front hall leads to a second bedroom perfect for guests or as a home office with the main bath close by. To top it off a separate main floor laundry room and separate entry to the attached garage. Plus a full basement waiting for your future development and ample storage space. This stylish brand new home built by Schoolyard Developments comes with a Tarion Warranty so you can just relax and enjoy this convenient location only two blocks from the quaint and welcoming downtown of Tweed. Stroll along the Moira River or head to the shore where the park meets the beach on Stoco Lake or drive to the premier Potter Settlement Vineyards & Artisan Winery nearby. This is a perfect opportunity for those looking to simplify, downsize, retire or start a new life together in a friendly and scenic village where the stars still sparkle at night, in the Land O Lakes, only minutes to Highway 7 or a half hour to 401/Belleville. (id:63476)
Open House
This property has open houses!
Starts at:1:30 pm
Ends at:2:30 pm
Property Details
|
MLS® Number |
X13032812 |
|
Property Type |
Single Family |
|
Community Name |
Tweed (Village) |
|
Amenities Near By |
Beach, Golf Nearby, Park |
|
Community Features |
Community Centre |
|
Features |
Carpet Free |
|
Parking Space Total |
2 |
|
Structure |
Deck |
Building
|
Bathroom Total |
2 |
|
Bedrooms Above Ground |
2 |
|
Bedrooms Total |
2 |
|
Age |
New Building |
|
Amenities |
Fireplace(s) |
|
Appliances |
Garage Door Opener Remote(s), Water Heater, Garage Door Opener |
|
Architectural Style |
Bungalow |
|
Basement Development |
Unfinished |
|
Basement Type |
Full (unfinished) |
|
Construction Style Attachment |
Attached |
|
Cooling Type |
Central Air Conditioning |
|
Exterior Finish |
Stone, Hardboard |
|
Fire Protection |
Smoke Detectors |
|
Fireplace Present |
Yes |
|
Fireplace Total |
1 |
|
Foundation Type |
Poured Concrete |
|
Heating Fuel |
Natural Gas |
|
Heating Type |
Forced Air |
|
Stories Total |
1 |
|
Size Interior |
1,100 - 1,500 Sqft |
|
Type |
Row / Townhouse |
|
Utility Water |
Municipal Water |
Parking
Land
|
Acreage |
No |
|
Land Amenities |
Beach, Golf Nearby, Park |
|
Sewer |
Sanitary Sewer |
|
Size Depth |
95 Ft ,7 In |
|
Size Frontage |
37 Ft ,7 In |
|
Size Irregular |
37.6 X 95.6 Ft |
|
Size Total Text |
37.6 X 95.6 Ft |
|
Surface Water |
Lake/pond |
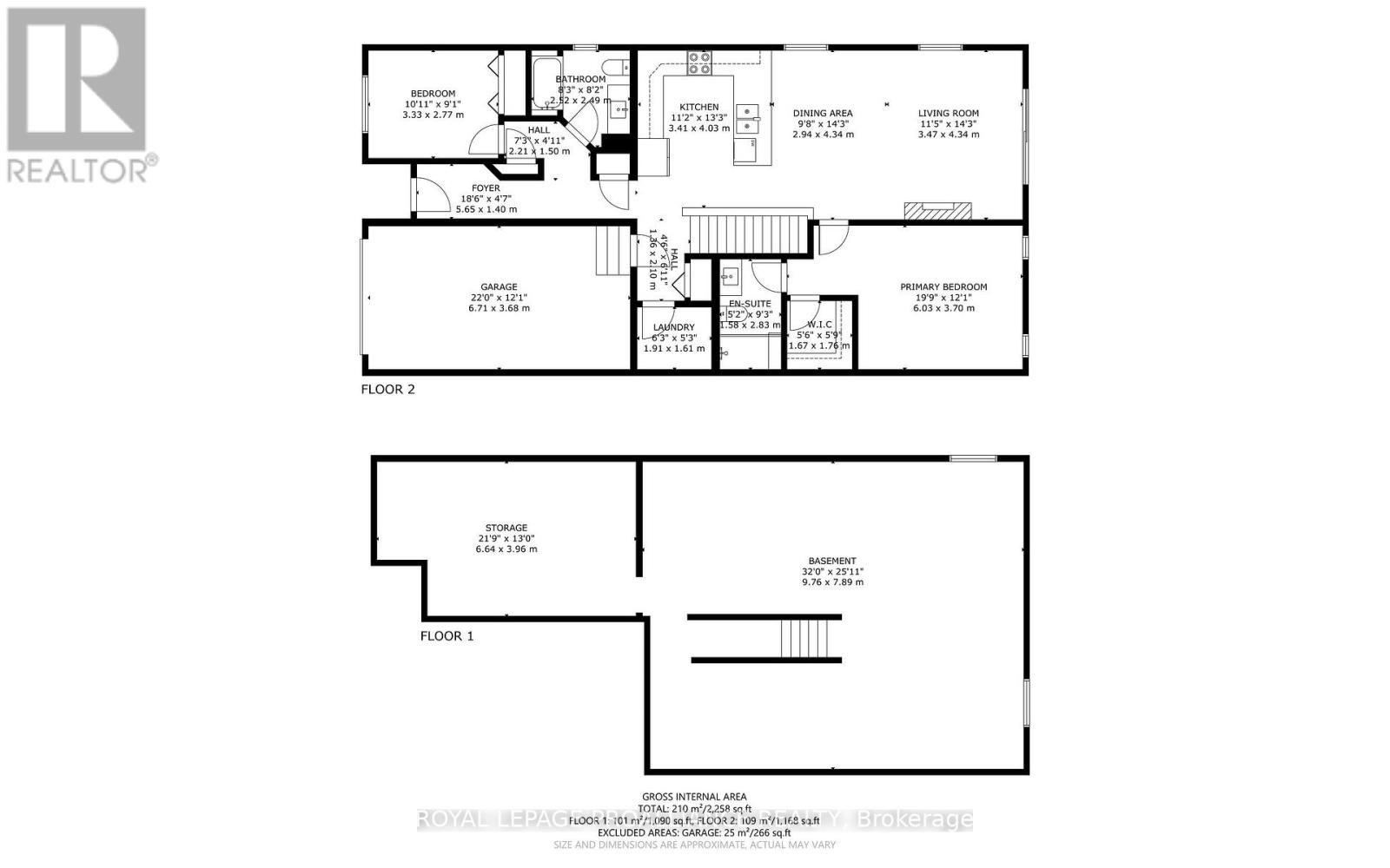
Rooms
| Level | Type | Length | Width | Dimensions |
|---|
|
Main Level |
Foyer |
5.65 m |
1.4 m |
5.65 m x 1.4 m |
|
Main Level |
Living Room |
4.34 m |
3.47 m |
4.34 m x 3.47 m |
|
Main Level |
Dining Room |
4.34 m |
2.94 m |
4.34 m x 2.94 m |
|
Main Level |
Kitchen |
4.03 m |
3.41 m |
4.03 m x 3.41 m |
|
Main Level |
Primary Bedroom |
6.03 m |
3.7 m |
6.03 m x 3.7 m |
|
Main Level |
Bathroom |
2.83 m |
1.58 m |
2.83 m x 1.58 m |
|
Main Level |
Bedroom 2 |
3.33 m |
2.77 m |
3.33 m x 2.77 m |
|
Main Level |
Bathroom |
2.52 m |
2.49 m |
2.52 m x 2.49 m |
|
Main Level |
Laundry Room |
1.91 m |
1.61 m |
1.91 m x 1.61 m |